发布时间:2023-02-20

本站讯:2月16日,在全国建筑、文博专家的共同见证下,第七批“中国20世纪建筑遗产”推介项目在广东茂名发布,天津大学冯骥才文学艺术研究院(以下简称“冯研院”)入选其中。院长冯骥才先生表示:“我院将秉持遗产项目的原则,加强对院舍建筑的保护和利用,让这座20世纪建筑遗产在未来发挥出更大作用。”
自2016年至今,在中国文物学会、中国建筑学会学术指导下,中国20世纪建筑遗产委员会的百余位业内建筑文博专家委员,共计向业界与社会推介了七批697个“中国20世纪建筑遗产”项目,涉及纪念建筑、会堂建筑、教科文体建筑、住宅与住区、医疗建筑、办公建筑、宾馆建筑、交通建筑、商业建筑、工业建筑等十多种门类,时间跨度百余年。这些建筑遗产项目紧随《世界遗产名录》的方向,填补了国家文保单位在“20世纪建筑遗产”类型上的空白,给从事现当代建筑创作的建筑师们留下思考,在传承的基础上实践创新。
以天津大学冯骥才文学艺术研究院、广东茂名露天矿生态公园与“六百户”民居及建筑群、国家植物园北园(含历史建筑)、江湾体育场、北京大学百周年纪念讲堂、西安钟楼饭店、云南艺术剧院、江西龙南解放街、梁思成先生设计的墓园及纪念碑等为代表的第七批推介项目共有100个。这一批入选项目进一步向市县基层延伸,探索了现代城市更新中历史文化传承和创新的多样路径。
此前,北洋大学旧址、天津大学主楼曾入选首批“中国20世纪建筑遗产”。

天津大学冯骥才文学艺术研究院
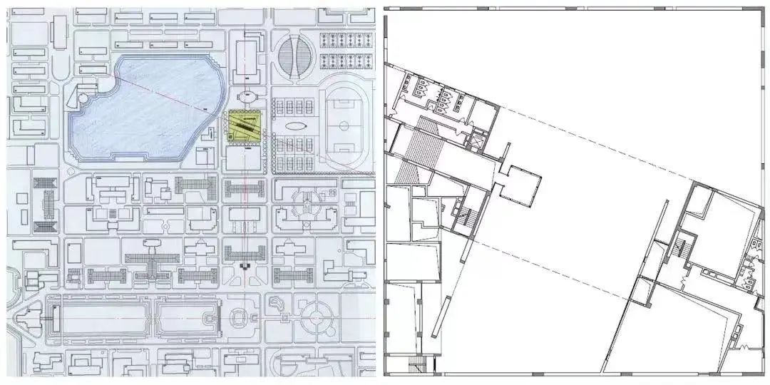
冯研院位于天津大学卫津路老校区的青年湖畔,院舍建筑面积6000平方米,2001年筹建,2005年落成。这是天津大学建筑学院教授、梁思成建筑奖获得者、中国当代著名建筑大师周恺在自己的母校完成的第一个建筑作品,也是天津大学冯骥才文学艺术研究院院长、著名作家、画家、文化学者冯骥才先生在传统的理工科院校腹地营建的一块人文绿地。

周恺第八届梁思成奖获得者
全国工程勘察设计大师
天津大学教授、博士生导师
华汇设计HHDesign 董事长、总建筑师

冯骥才著名作家、画家、文化学者
天津大学冯骥才文学艺术研究院院长

设计图

建筑模型

建筑位置图与局部设计图

2005年落成时

如今的冯研院
在冯研院的设计上,周恺先生赋予独特的匠心和天才的创造。高大的院墙合围出方形院落,院墙开出大小各异、形状不一的洞口,仿佛四时变幻的天空的画框。院中斜向架空的建筑体量将方形院落分成南北两个楔形院落,架空的楼体下方有一池粼粼浅水贯穿南北院落,这样的处理不仅保持院落之间视线上的贯通,也极大丰富了空间层次。建筑混凝墙面采用纵向切割、凿毛处理,具有斧凿粗粝的质感。庭院则以立瓦、青砖和木板漫地,质朴而清雅。加之楼内空间错落灵动,光线晦明变化,简约深遂,极具当代建筑的现代美,又富于空远静逸的东方书院的意境。
院长冯骥才先生则融入人文的意蕴和艺术的精魂,使它不断成长为一个独具魅力的生命体。如今这座建筑已成为天津大学老校区内一座风情特异的景观,一个摄影爱好者经常光顾的地方。每年秋天,满院红叶,蔚为奇观。学生聚在这里吟诗、唱歌、弹奏、拍照。“红叶季”己成天大校内外知名的校园文化品牌。
冯研院的建筑设计曾荣获以下诸多大奖:

目前,学院正在研究对这一建筑进一步保护和利用的规划。


讲究构成的当代建筑语汇

开洞的院墙

架空楼体下的澄心池

粗粝的墙面上藤蔓自由攀爬

多种材质的庭园地面质朴清雅

藤蔓渐渐爬满

秋天满墙红叶

拂弦唱诗相聚红叶季

阳光盒子

从一层半墙上的圆孔看落地长窗

大树画馆

跳龙门乡土艺术博物馆雕塑厅

后院教研办公室一侧层次错落的空间
(编辑 焦德芳 张铭艺)